- Vorbemerkungen
- Zusammenfassung
- Gesamteindruck
- Hochaltar
- Chorgestühl
- Deckenfresken und Stuckaturen (Chor)
- Chororgel
- Seitenaltäre
- Kanzel und Beichtstühle
- Deckenfresken (Langhaus)
- Stuckaturen (Langhaus)
- Orgelempore
- Hauptorgel
- Vorhalle
- Sakristei
- Loretokapelle
- Bernhardkapelle
- Sakramentskapelle und Chorumgang
- Portenkapelle
- Sanierung 2019-2025
Zusammenfassung
Dieser Text gibt im Wesentlichen die baubeschreibende Arbeit von Felix Mader wieder, die er in den Kunstdenkmälern von Niederbayern veröffentlichte (Bd. 14.: Bezirksamt Vilshofen, München 1920, 23-52). Neuere Erkenntnisse, die zum Teil auf Pfarrer Willibald Hauer zurückgehen, wurden kommentarlos in den Text eingefügt (aus: Hauer, Willibald: Von St. Peter zur "schönsten Marienkirche Bayerns", in: Katholisches Pfarramt Aldersbach (Hg.): 250 Jahre Asamkirche Aldersbach, Aldersbach 1970, 16-32).
Die Rechteinhaber der Abbildungen sind in jedem Fall angegeben, die Einhaltung der Regelungen zur Wiederverwendung sind einzuhalten. Informationen zu den Creative Commons-Lizenzen stehen hier zur Verfügung. Etliche Abbildungen wurden der Webdatenbank Deutsches Dokumentationszentrum für Kunstgeschichte - Bildarchiv Foto Marburg entnommen. Ein Teil dieser Bilder gehört zu den Beständen des Zentralinstituts für Kunstgeschichte München und des Rheinischen Bildarchivs Köln.
| Basisdaten | |
|---|---|
| **Status** | Klosterkirche bis 1803, seit 1806 Pfarrkirche, seit 17.08.1873 Eigentum der Pfarrkirchenstiftung Aldersbach |
| **Bauzeit** | Chor ca. 1615-1617 (Spätgotik), Langhaus ca. 1717-1720 (Barock), spätere Adaptionen und Ergänzungen im Stil des Rokoko |
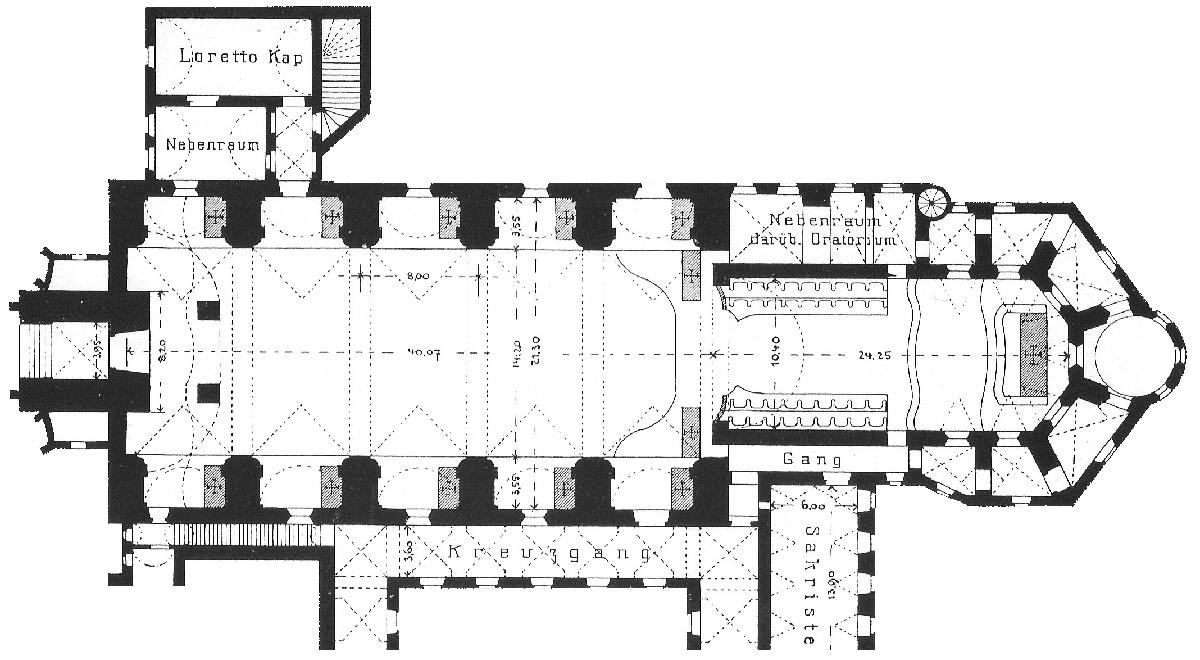
| **Dimensionen** | Langhaus: 40,07 x 21,30 m, Chor: 24,25 x 10,40 m (ohne Kapellen), Gesamtlänge mit Turm: ca. 80 m |
| **Turmhöhe** | 61,63 m |
| **Patrozinium** | Maria Himmelfahrt, Johannes Baptist, Ursula |
| **Vorgängerbau** | dreischiffige romanische Basilika, Weihe 1207 |
| **Architekten** | ca. 1615-1617: evtl. Matthias Kager, ca. 1717-1720: Domenico Magzin |
| **Künstler** | Egid Quirin (Stuckateur) und Cosmas Damian Asam (Maler), Christoph Thomas Scheffler (Maler, Mitarbeiter von C.D. Asam), Johann Baptist Modler (Stuckateur), Matthias Kager, Johann Georg Bergmiller, Bartholomaeus Altomonte, Andreas Math, Nikolaus Stuber und Johann Jakob Zeiler (Maler bzw. Stuckateure), Johann Degler, Joseph Matthias Götz, Joseph Deutschmann und Wenzel Jorhan (Bildhauer) |
| **Renovierungen/Sanierungen** | Außen 1892. Innen ab 1911 unter Aufsicht und Leitung des Königlichen Landbauamtes Passau und des Generalkonservatoriums in München. Durch Kunstmaler Ranzinger München wurden die Freskobilder restauriert. Kirchenmaler Aspermaier von Straubing hat im gleichen Jahr die Tünchung und Bemalung der Gewölbe und Wandflächen sowie die Stuckaturfassung erneuert und die Restaurierung des Hochaltares durchgeführt. Kunsttischler Schuhbauer von Bogen war mit dem Abziehen und Ausbessern der Chorstühle beauftragt, wo Hofziseleur Waltenherger von Bad Aibling die Zinnauflagen ergänzte. Außen 1952, 1977-1983 und 2014-2015. Innen 1961 und 2019-2024. Sakristei: 1908-1912, 1973-1976 und 2019-2024. Portenkapelle: Wiederindienststellung als Gottesdienstraum in den 1930er-Jahren, erneute Sanierung in den Jahren 1969 und 1970 unter Fritz Markmiller. Der Straubinger Restaurator Albert Lauerbach besorgte die teilweise sehr schwierige Reinigung und Konservierung der Fresken. Kirchenmaler Martin Zunhamer aus Altötting hatte die Raumtönung übernommen, Josef Schnitzer aus Buching im Allgäu die Ergänzung der Stuckteile. |
| **Orgeln** | Hauptorgel: 42 Register (III/P) der Firma Eisenbarth Passau (1985-2005), Chororgel: 21 Register (II/P) der Firma Weise Straubing (1929) |




